- ホーム /
- 南房総暮らしガイド - FAQ /
- 住まい /
- 南房総市空き家バンク
Guide / FAQ
暮らしガイド・FAQ
南房総市空き家バンク
募集中
- 賃貸
- 和田地区
No156 駅近・海近!マリンレジャーに最適な平屋物件
3DK/延床面積94.6㎡/JR和田浦駅すぐ目の前/海まで徒歩5分
賃料70,000円/月
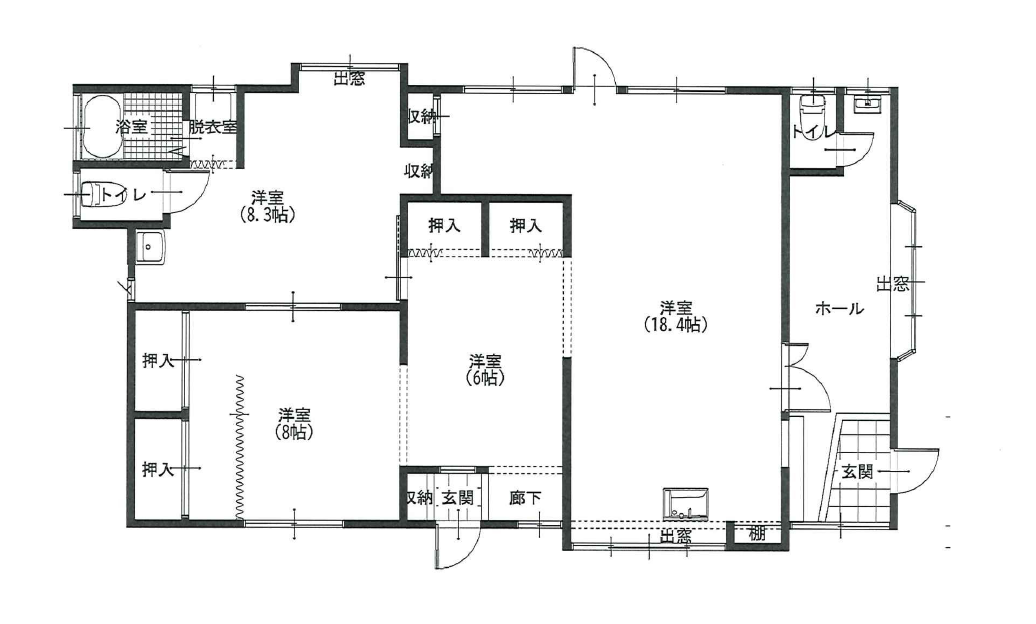
間取り
契約形態等
| 契約形態 | 一戸建て(賃貸) | 登録地区 | 和田地区 |
|---|---|---|---|
| カテゴリ | 外房 | ||
| 売買価格 | 賃貸価格 | 70,000円/月 | |
| 備考 | |||
物件の概要
| 所在地 | 千葉県南房総市和田町仁我浦 | ||
|---|---|---|---|
| 築年月 | 平成5年5月 | 構造 | 木造スレート葺平屋建 |
| 共益費 | なし | ||
| 延床面積 | 94.6㎡ | 敷地面積 | 105㎡ |
| 間取り | 3DK | 補修 | 不要 |
設備状況
| ガス | 個別プロパン | 台所 | ガスコンロなし・給湯器あり ※キッチン設備なし |
|---|---|---|---|
| 水道 | 井戸 | 下水道 | 個別浄化槽 |
| 風呂 | シャワーあり・自動給湯あり | トイレ | 洋式・水洗 |
| テレビ回線 | アンテナあり | インターネット | 設備なし |
| オール電化 | 無 | 庭 | なし |
| 物置 | なし | 駐車場 | あり(3台まで可) |
主要施設
| 小学校区 | 嶺南小学校 | 中学校区 | 嶺南中学校 |
|---|---|---|---|
| 最寄駅 | JR和田浦駅 | 最寄バス停 | 和田浦駅入口 |
| 南房総市役所 | 和田地域センター | 最寄りの 医療機関 |
中原病院 |
その他特記事項
元接骨院だった平屋建て物件。
JR和田駅のすぐ目の前で海(サーフポイント)にも近い好立地。
お問い合わせ
南房総市建設環境部建設課
TEL:0470-33-1101
FAX:0470-20-4597
メール:jutaku@city.minamiboso.lg.jp
※物件の見学や利用を希望される場合は、事前に空き家バンクの利用者登録申し込み手続きが必要になります。
